skip to main content
$349,900

1034 Preston Drive, North Versailles, PA 15137

Active #1750378
New4/26
North VersaillesEast Allegheny School DistrictAllegheny County
Single Family4 Beds2 Baths1 Half Baths0.42 Acres
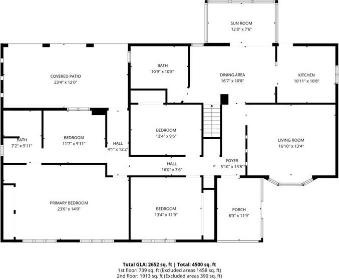
Welcome to 1034 Preston! You will be impressed by this well maintained ALL brick home located in a peaceful setting. Inviting covered front porch greets you right away. Nice living room with large picture bay window. Fully equipped kitchen with granite countertops and access to backyard. Large separate dining area. Watch the birds all day from the cozy 4 season sunroom with walls of windows and 2 skylights for an abundance of natural light. Updated full bath with extra vanity and shower has steam room option. First bedroom has triple closets. Second bedroom is used as a office that fits 2 office desks. Third bedroom is so versatile..can be an office or nursery as it has access to the en-suite. You will love this very spacious primary bedroom with double closets and en-suite. Steps away is a covered back porch with hot tub and extra space for furniture, grill and smoker. Need more hangout space..then look no further than the lower level boasting one game room with gas fireplace and a second game room with electric fireplace to watch movies/sports. Updated powder room, laundry area, separate storage room with shelves and access to garages completes the basement. Integral garages include 1 sep bay and 2 car bay with one side tandem. Enjoy the green space on both sides of the home for outdoor activities, a little privacy and parties. Speaking of parties..you will find a path to fenced-in yard with a refreshing in-ground POOL with new concrete patio and liner. Pool house is equipped with mini kitchenette, powder room, sound system, outdoor shower and storage area. You are ready to go this summer! Enough parking for guests and RV/boat/trailer. Additional shed. Newer windows. Instant hot water system. 30 minutes to Pittsburgh! Come and see this home today!
Listed ByJoy Foust(724) 226-0700
General Information
Lot Size 0.4204
Taxes $5,790
Exterior Features
Construction Brick
Parking LookupError:INTGRG,OFFST, 6
Pool
Roof Asphalt
Style Raised Ranch
Interior Features
Basement Interior Only, fulfin
Fireplaces 1
Floors Ceramic Tile, Vinyl
Room Count 11
Included
Auto Door on Garage
Dishwasher
Gas Stove
Hot Tub
Microwave Oven
Refrigerator
Washer/Dryer
Window Treatments
Utilities
Cooling Central
Heating Gas, Hot Water
Sewage Public
Water Public

Rooms

Main Level

  • Living Room16x13

  • Dining Room16x10

  • Kitchen11x11

  • Extra Room13x7

  • Master Bed23x14

  • Bedroom13x9

  • Bedroom13x12

  • Bedroom12x10

Lower Level

  • Game Room21x24

  • Laundry10x24

  • Extra Room17x16

Room sizes and locations are based on available info. Bathrooms and additional rooms may not be shown. Contact us for more detail.

Map

Drive Time Estimator

Add locations to calculate your drive time to this property.

Mortgage Estimator

principal + interest
$0
$
price
% down
$
loan
%
years
+
taxes
$483
$
taxes/yr
+
insurance
$0
$
ins./yr
=
monthly cost
$0
Total Monthly Cost

For more details, use our mortgage comparison and amortization tool.

This is an estimate which can be affected by your lender's rates, PMI requirements and other factors. For the most accurate information, contact a mortgage representative.

Information Herein is Deemed Reliable but Not Guaranteed

Make This Your Home!
Listed ByJoy Foust(724) 226-0700

I'd like to:

Email This Property

Fill out the form below to email this property to a friend!

Login
Register
Log In To Use This Feature

Log in to access your saved properties, easily request more information, get customized mortgage calculations and more! Or register a new account.

Register to Use This Feature

Creating an account allows you to save properties, easily request more information, get customized mortgage calculations and more!

Forgot Password

Enter your email address in the box below and click "Reset Password" to send an email with instructions to reset your password.