skip to main content
$515,000

146 Red Horse Drive, Buffalo Twp, PA 16055

Active #1736623
New1/15
Buffalo TwpFreeport Area School DistrictButler County
Single Family4 Beds3 Baths1 Half Baths0.21 Acres
Welcome to 146 Red Horse! You will love this modern home with a fabulous fenced-in backyard. Den with French doors lets you work away from the noise. Bright open concept of living room-kitchen-dining area. Kitchen has extra large island with seating, all granite countertops, S/S appliances, plenty of cabinets and access to Trex deck. Deck has steps to yard (70x60) and patio below for easy entertaining. Mud room area is so convenient with powder room, pantry, coat closet and garage entrance. Upstairs 3 good-sized bedrooms, full bath and laundry room with built-in shelves. Primary bedroom is spacious for all your furniture, HUGE WIC and beautiful en-suite. Tiled shower with bench, garden tub and dual marble countertops. Lower level offers game room with sliding doors to patio and yard, full bath, and separate storage room. Two car attached garage with electric car charger plug. Driveway extension of 2 concrete parking spaces. Neutral colors throughout home. Very Clean..Ready to move your stuff right in! Freeport School District. Great location..close to 356, 228 and 28.
Listed ByJoy Foust(724) 226-0700
General Information
Lot Size 62x149x66x148
Taxes $6,846
Exterior Features
Construction Vinyl
Parking LookupError:ATTGRG,OFFST, 5
Roof Asphalt
Style 2 Story or 2 Level
Subdivision Twin Oaks
Interior Features
Basement Walk Out, fullfin
Floors Tile, Vinyl, Wall to Wall
Room Count 12
Included
Auto Door on Garage
Dishwasher
Gas Stove
Kitchen Island
Microwave Oven
Refrigerator
Wall to Wall Carpet
Window Treatments
Utilities
Cooling Central
Heating Gas, Forced Air
Sewage Public
Water Public

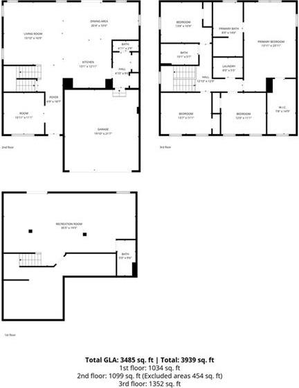
Rooms

Upper Level

  • Master Bed20x14

  • Bedroom11x11

  • Bedroom11x13

  • Bedroom11x12

  • Laundry5x7

Main Level

  • Entry4x13

  • Den11x11

  • Family Room14x16

  • Kitchen19x13

  • Dining Room9x12

Lower Level

  • Game Room35x16

  • Extra Room11x15

Room sizes and locations are based on available info. Bathrooms and additional rooms may not be shown. Contact us for more detail.

Map

Drive Time Estimator

Add locations to calculate your drive time to this property.

Mortgage Estimator

principal + interest
$0
$
price
% down
$
loan
%
years
+
taxes
$571
$
taxes/yr
+
insurance
$0
$
ins./yr
=
monthly cost
$0
Total Monthly Cost

For more details, use our mortgage comparison and amortization tool.

This is an estimate which can be affected by your lender's rates, PMI requirements and other factors. For the most accurate information, contact a mortgage representative.

Information Herein is Deemed Reliable but Not Guaranteed

Make This Your Home!
Listed ByJoy Foust(724) 226-0700

I'd like to:

Email This Property

Fill out the form below to email this property to a friend!

Login
Register
Log In To Use This Feature

Log in to access your saved properties, easily request more information, get customized mortgage calculations and more! Or register a new account.

Register to Use This Feature

Creating an account allows you to save properties, easily request more information, get customized mortgage calculations and more!

Forgot Password

Enter your email address in the box below and click "Reset Password" to send an email with instructions to reset your password.